820 CROWN CIRCLE

5 Bed | 5.5+ Bath | 4 Car Garage | MLS # 21370587

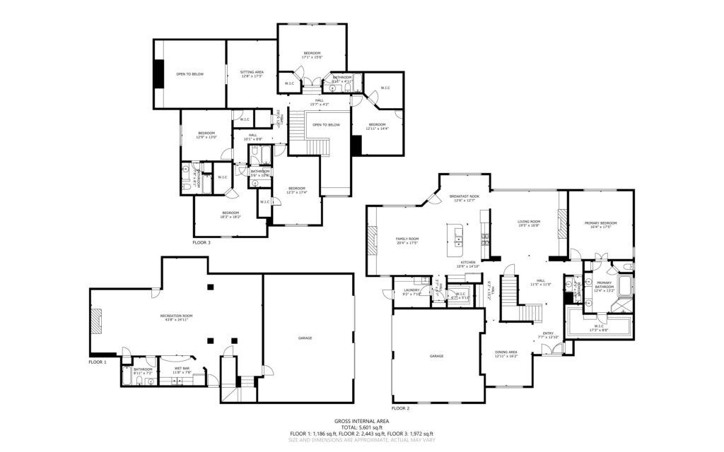
Discover refined living in Greystone Legacy’s distinguished gated community with this magnificent 5 bedroom, 5.5 bath home, nestled in a tranquil cul-de-sac.

This property is a showcase of luxury, offering an array of upscale amenities. Upon entering, be welcomed by a majestic two-story foyer that seamlessly flows into a spacious great room, a beautiful setting for hosting gatherings. The elegance is further elevated in the formal dining room, complemented by a convenient butler’s pantry. The gourmet kitchen stands as the home’s centerpiece, boasting stainless steel appliances, granite countertops, and a vaulted ceiling keeping room, accompanied by a cozy eat-in area.

Outdoor living is redefined here, with a stunning outdoor kitchen area, ideal for outdoor dining and entertaining. A screened porch adds to the outdoor allure, providing a serene space for relaxation. The main level is also graced with a spacious master suite, complete with an opulent bath, a laundry room and a powder room.

The upper level where four additional bedrooms await, alongside an open loft area and a second laundry facility, ensuring comfort and convenience. The basement level reveals its own charm with a versatile bonus/media room, an extra kitchen, a bathroom, and an additional two-car garage, offering expansive living options.

The home is further enhanced by three cozy fireplaces in the great room, keeping room, and bonus room, each adding to the welcoming ambiance.

Your future home awaits!


 

ACCESS MEDIA FILES (PHOTOS AND FLOOR PLANS) >>